店舗
南区西九条東比永城町
◇◇南区西九条東比永城町◇◇
■近鉄 十条駅まで徒歩6分
■南西角地につき陽当り・通風良好
■札ノ辻通×猪熊通面す
■屋上防水工事実施済
■自己使用・収益運用としてもご検討頂けます
■生活施設・教育施設も充実の嬉しい立地♪
■土地約50坪
■前道・間口共に広々
是非お気軽にお問合せください!
- 価格
- 9,800万円ローンシュミレーター
- 住所
- 京都府京都市南区西九条東比永城町
- 竣工
- 1985年11月
- 階数
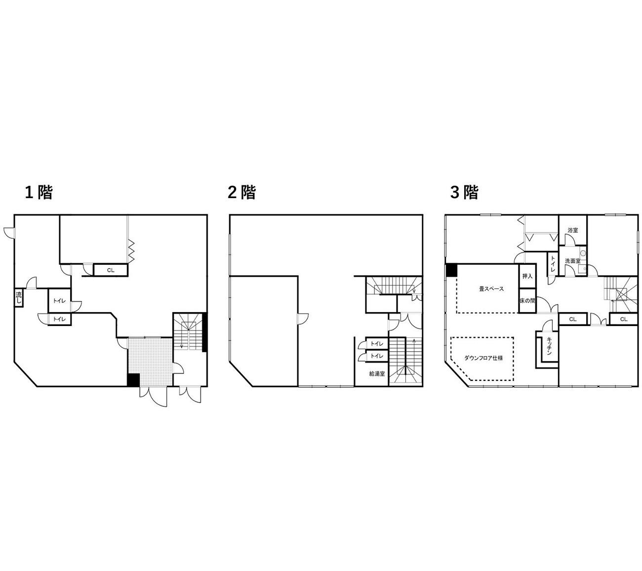
- 3階建て
- 小学校区
- 九条塔南小学校 約190m
- 中学校区
- 九条中学校 約550m
- 沿線・交通
- 近鉄京都線 十条駅 徒歩6分
京都市営地下鉄烏丸線 十条駅 徒歩14分
JR東海道本線 京都駅 徒歩18分
- 土地20坪以上
- 角地
- 南向き
- 前道約6m以上
- 周辺施設充実
- スーパー徒歩10分以内
- 2沿線以上利用可能
- トイレ2カ所
- 小学校徒歩10分以内
- 電話でのお問い合わせ
- 京都西店075-925-9990
- 土地権利
- 所有権
- 土地面積基準
- 公簿
- 土地面積
- 176.59㎡(53.41坪)
- 建ぺい率
- 60%
- 容積率
- 200%
- 接道
- 南側 幅員約11m
間口約11m
西側 幅員約6m
間口約8m
- 地目
- 宅地
- 用途地域
- 第二種住居地域
- 構造(主要)
- 鉄筋コンクリート造
- 延床面積
- 425.5㎡(128.71坪)
- 建物現況
- 使用中
- 引渡状態
- 要相談
- 駐車場
- なし
- 都市計画
- 市街化区域
- 周辺情報
- セブンイレブン京都油小路九条店 約500m
- ローソン東寺駅前店 約450m
- ミニストップ京都東寺前店 約500m
- 生鮮スーパーケント東寺店 約350m
- フレスコ東寺店 約400m
- イオンモールKYOTO 約1000m
- スギ薬局東寺店 約350m
- 塔南保育園 約130m
- 京都東寺郵便局 約270m
- 京都銀行九条支店 約500m
- 備考
※現状有姿取引
※1階:店舗事務所 2階:事務所 3階:居宅■市バス「九条大宮」停まで徒歩5分
- 電話でのお問い合わせ
- 京都西店075-925-9990

