中古一戸建て
右京区梅ケ畑高鼻町
■土地約65坪
■駐車1台可
■陽当たり・通風・眺望良好
■間口約14.53m
■閑静な住宅街
■最寄りバス停まで徒歩3分
- 価格
- 4,180万円ローンシュミレーター
- 住所
- 京都府京都市右京区梅ケ畑高鼻町
- 竣工
- 2000年04月
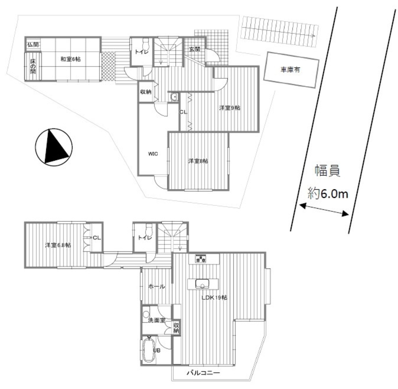
- 間取り
- 4LDK
- 階数
- 2階建て
- 小学校区
- 高雄小学校 約1900m
- 中学校区
- 双ケ丘中学校 約3060m
- 沿線・交通
- 京福電気鉄道北野線 宇多野駅 徒歩26分
バス停 JRバス・京都市バス「高雄病院前」 徒歩3分
- 土地20坪以上
- 駐車スペースあり
- 全居室6帖以上
- 前道約6m以上
- 即入居可能
- 和室
- 閑静な住宅街
- 空家
- 浴室に窓あり
- トイレ2カ所
- 電話でのお問い合わせ
- 右京本店075-863-0080
- 土地権利
- 所有権
- 土地面積基準
- 公簿
- 土地面積
- 217.72㎡(65.86坪)
- 建ぺい率
- 40%
- 容積率
- 60%
- 接道
- 南東側 公道 幅員約6m
間口約14.53m
- 地目
- 宅地
- 上水道
- 公営
- 下水道
- 下水
- ガス
- 都市
- 用途地域
- 第一種低層住居専用地域
- 構造(主要)
- 木造
- 延床面積
- 155.74㎡(47.11坪)
- 建物現況
- 空家
- 引渡状態
- 即可能
- 駐車場
- あり
- 都市計画
- 市街化区域
- 法令制限
- 10m高度地区、風致地区:第3種地域
- 周辺情報
- ローソン京都高雄店 約280m
- JA京都中央高雄支店 約1700m
- 京都宇多野郵便局 約1860m
- 京都信用金庫御室支店 約2070m
- 備考
■現状有姿取引
■売主の契約不適合責任免責
- 電話でのお問い合わせ
- 右京本店075-863-0080

